Trilocale in vendita

Milano, Via lecco - Buenos Aires Tunisia
€ 495.000
3 locali 3 locali
59 Mq 59 Mq
1 bagno 1 bagno

Trilocale in vendita

Milano, Via lecco - Buenos Aires Tunisia

Descrizione annuncio

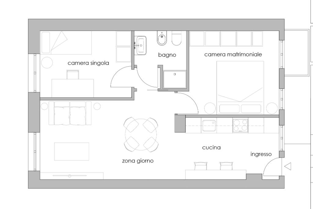
Questo trilocale in fase di ristrutturazione rappresenta un'opportunità unica nel panorama immobiliare milanese. Con una superficie ben distribuita, l'appartamento offre spazi luminosi e versatili, ideali per essere personalizzati secondo i propri gusti e necessità. La zona giorno, spaziosa e accogliente, è perfetta per momenti di convivialità, mentre le camere da letto sono progettate per garantire il massimo comfort e privacy. La vicinanza a Corso Buenos Aires, una delle arterie commerciali più note della città, assicura una vita dinamica e ricca di opportunità. Inoltre, la presenza di doppi ascensori e il servizio di portineria aumentano la sicurezza e la comodità dell'edificio. Che sia per investimento o per un utilizzo personale, questo immobile promette di soddisfare le aspettative più elevate di chi desidera vivere nel cuore pulsante di Milano.

Mostra tutto

Nelle vicinanze

Trasporto pubblico Trasporto pubblico
Porta Venezia
Porta Venezia
270 m
Lima
Lima
540 m
Milano Centrale
Milano Centrale
1,0 Km
stazione di Milano Dateo
stazione di Milano Dateo
1,5 Km
Viale Tunisia
Viale Tunisia
180 m
Ricariche auto elettriche Ricariche auto elettriche
MACHIAVELLI PARKING
280 m
A2A Isola Digitale Porta Venezia
340 m
Parcheggio Via Manuzio
380 m
Hotel Baviera Mokinba
420 m
The Westin Palace
450 m
Scuole Scuole
Liceo Scientifico Alessandro Volta
220 m
ITCS Schiaparelli-Gramsci
310 m
Istituto Gonzaga
500 m
Istituto comprensivo Antonio Stoppani
570 m
Scuola Europa
600 m
Farmacia Farmacia
Farmacia Venezia
170 m
Antica Farmacia del lazzaretto
170 m
Farmacia Formaggia
280 m
Parashop
310 m
Farmacia Braccio
350 m
Ospedali Ospedali
Fatebenefratelli
1,1 Km
Centro Medico Milano Tree Of Life S.r.l.
1,2 Km
Ospedale Macedonio Melloni
1,7 Km
Istituto Clinico Città Studi
1,8 Km
Istituto Neurologico Carlo Besta
2,0 Km
Supermercati Supermercati
Pam local
240 m
U2
270 m
Punto Simply
280 m
Auchan
310 m
Conad City
330 m
Negozi Negozi
Center Shundar Bhan
100 m
Negozi
120 m
Ok Sigma
140 m
Puma
190 m
Indian Shop
190 m
Bar Bar
Bar Hiwinet
90 m
Bar Addis Abeba
100 m
LeccoMilano
120 m
Red Cafè
130 m
PoP
150 m
Ristoranti Ristoranti
Lanzhou Ramen
10 m
Wok in Box
50 m
Delicatessen
50 m
Wang Jiao Milan
60 m
Platina "Immagina la Pasta"
70 m
Mostra tutto

Caratteristiche

Rif.:
61161263
Piano:
3 di 7 con ascensore (Piano medio)
Balconi:
1
Camere da letto:
2
Arredamento:
Assente
Condizionamento:
Autonomo
Mostra tutto
Prezzo Prezzo
€ 495.000
Rata mutuo Rata mutuo
€ 2.349 / mese
Spese annue Spese annue
€ 2.000
Proponi il tuo prezzoProponi il tuo prezzo

Classe Energetica

D
D
D
D
D
D
D
D
D
EP globale non rinnovabile:
183.72 kW h/m² anno
EP invernale del fabbricato:
EP estiva del fabbricato:
Anno di costruzione:
1960
Riscaldamento:
Autonomo
Tipo impianto:
A pavimento
Tipo alimentazione:
Gasolio

Ti interessa visionare l'immobile?

Fissa un appuntamento  Fissa un appuntamento

Richiedi informazioni

Clicca su Leggi per aprire l'informativa
* Questi campi sono obbligatori

Calcola il tuo mutuo

Semplice e senza impegno
Anticipo

( % )
Mutuo

( % )

pochi semplici passi

inserisci i tuoi dati
Questionario completato
Grazie per aver richiesto un appuntamento senza impegno con un nostro Consulente del Credito e Assicurativo.

Hai inserito correttamente tutti i dati necessari e a breve riceverai una e-mail con un link da convalidare per inviare i tuoi dati.
Affiliato
Domus 51 Srl
Via Benedetto Marcello (Ang. Via S.Gregorio), 1 20124 Milano (MI)

Il nostro staff


  • Cesare Gianluca Risoluto
    Affiliato

  • Caterina Mongiardo
    Coordinatrice

  • Davide Felice
    Affiliato
Via Benedetto Marcello (Ang. Via S.Gregorio), 1 20124 Milano (MI)
Zona: Buenos Aires - Porta Venezia
Mostra su mappa
Orari: Lunedì - Venerdì 9.00 - 13.00 / 14.30 - 19.30; Sabato 9.00 - 12.30
Affiliato
Domus 51 Srl
Via Benedetto Marcello (Ang. Via S.Gregorio), 1 20124 Milano (MI)

2026 Tecnocasa Franchising S.p.A. - P. IVA 08365160152 - Via Monte Bianco 60/A 20089 Rozzano (MI). Ogni agenzia ha un proprio titolare ed è autonoma. Privacy policy | Policy utilizzo | Cookie policy