Quadrilocale in vendita

Milano, Via Alfredo Cappellini - Repubblica
€ 850.000
4 locali 4 locali
150 Mq 150 Mq
2 bagni 2 bagni

Quadrilocale in vendita

Milano, Via Alfredo Cappellini - Repubblica

Descrizione annuncio

A pochi passi da Piazza della Repubblica, nel cuore pulsante della vita milanese, in contesto signorile con servizio di portineria, proponiamo un’ampia soluzione abitativa.

L’immobile rappresenta la scelta ideale per chi desidera uno spazio generoso da personalizzare e reinventare secondo le proprie esigenze familiari.

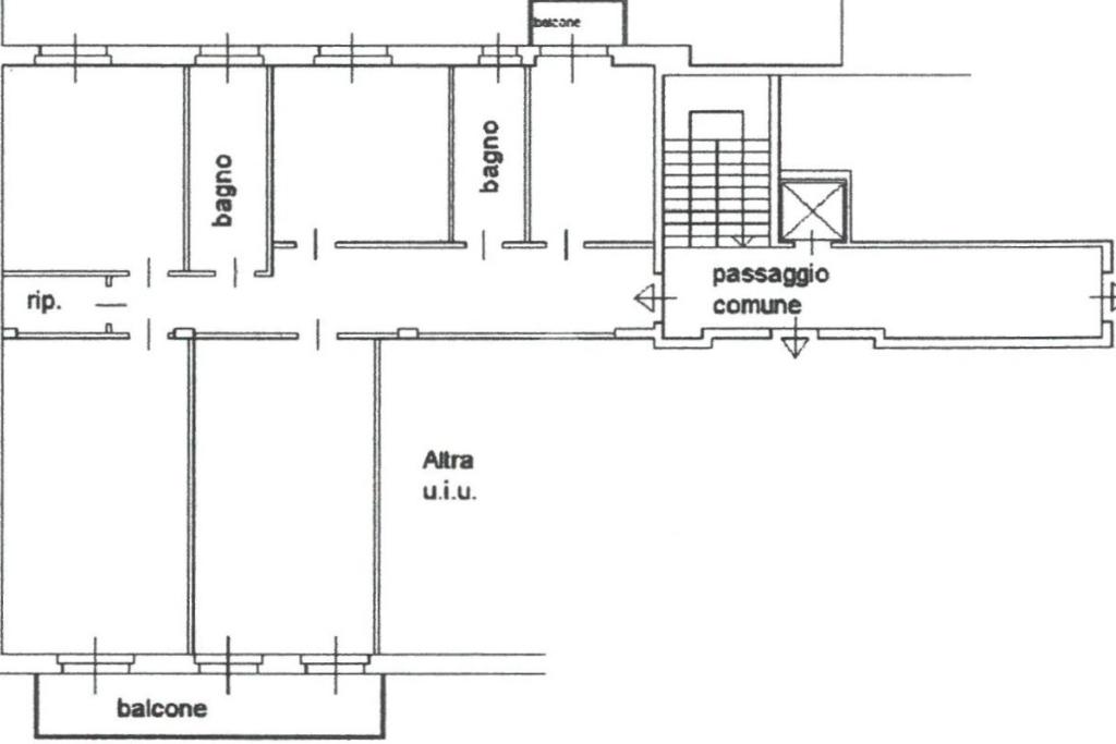
La residenza è attualmente composta da un ampio ingresso, soggiorno, cucina abitabile, tre spaziose camere da letto, doppi servizi entrambi finestrati e ripostiglio. Completa la proprietà una cantina.

Grazie alla doppia esposizione, l’appartamento gode di una piacevole luminosità, unita a una strardinaria tranquillità.

Situato in via Capellini, l’immobile si trova in una zona eccellentemente servita dai mezzi di trasporto: a pochi passi è presente la fermata della metropolitana MM Repubblica, nelle immediate vicinanze il passante ferroviario e la Stazione Centrale, rendendo gli spostamenti rapidi e comodi in tutta la città.

Soluzione perfetta per chi è alla ricerca di un immobile esclusivo in una delle zone più richieste di Milano.

Mostra tutto

Nelle vicinanze

Trasporto pubblico Trasporto pubblico
Centrale FS
Centrale FS
330 m
Repubblica
Repubblica
420 m
Milano Centrale
Milano Centrale
630 m
Milano Porta Garibaldi superficie
Milano Porta Garibaldi superficie
1,2 Km
Piazza Cincinnato
Piazza Cincinnato
220 m
Ricariche auto elettriche Ricariche auto elettriche
Parcheggio Via Manuzio
330 m
A2A Isola Digitale Stazione Centrale
390 m
The Westin Palace
400 m
MACHIAVELLI PARKING
410 m
Hotel Baviera Mokinba
430 m
Scuole Scuole
ITCS Schiaparelli-Gramsci
230 m
Istituto Gonzaga
250 m
Liceo Scientifico Alessandro Volta
340 m
CFTA Milano
360 m
Scuola Primaria Statale "Luigi Galvani"
470 m
Farmacia Farmacia
Farmachl
30 m
Farmacia Braccio
190 m
Farmacia Pisani 26
210 m
Farmacia Humanitas
280 m
Farmacia Repubblica
280 m
Ospedali Ospedali
Fatebenefratelli
950 m
Centro Medico Milano Tree Of Life S.r.l.
1,6 Km
Humanitas San Pio X
1,8 Km
Istituto Villa Marelli
1,8 Km
Istituto Clinico Città Studi
1,8 Km
Supermercati Supermercati
Penny Express
80 m
Pam local
240 m
Mix Markt
340 m
Conad City
440 m
Sapori & Dintorni Conad
490 m
Negozi Negozi
Gabriel by Senso Unico
10 m
Maracaibo
30 m
La Saletta
50 m
Farina Rosa
80 m
Chiaro di Luna
80 m
Bar Bar
Barba
90 m
Monkey Cocktail Bar
120 m
Cheri
120 m
Fashion Bar
140 m
Cin-Cin...Nato
240 m
Ristoranti Ristoranti
Ristorante Pizzeria Napule è Milano
10 m
Moebius
10 m
Miscusi
60 m
Osteria del Treno
110 m
Antica Osteria Cavallini
120 m
Mostra tutto

Caratteristiche

Rif.:
61207197
Piano:
3 di 4 con ascensore (Piano medio)
Balconi:
2
Camere da letto:
3
Arredamento:
Assente
Condizionamento:
Autonomo
Mostra tutto
Prezzo Prezzo
€ 850.000
Rata mutuo Rata mutuo
€ 4.034 / mese
Spese annue Spese annue
€ 4.000
Proponi il tuo prezzoProponi il tuo prezzo

Classe Energetica

B
B
B
B
B
B
B
B
B
EP globale non rinnovabile:
195.91 kW h/m² anno
EP invernale del fabbricato:
EP estiva del fabbricato:
Anno di costruzione:
1960
Riscaldamento:
Centralizzato
Tipo impianto:
A pavimento
Tipo alimentazione:
Metano

Ti interessa visionare l'immobile?

Fissa un appuntamento  Fissa un appuntamento

Richiedi informazioni

Clicca su Leggi per aprire l'informativa
* Questi campi sono obbligatori

Calcola il tuo mutuo

Semplice e senza impegno
Anticipo

( % )
Mutuo

( % )

pochi semplici passi

inserisci i tuoi dati
Questionario completato
Grazie per aver richiesto un appuntamento senza impegno con un nostro Consulente del Credito e Assicurativo.

Hai inserito correttamente tutti i dati necessari e a breve riceverai una e-mail con un link da convalidare per inviare i tuoi dati.
Affiliato
Domus 51 Srl
Via Benedetto Marcello (Ang. Via S.Gregorio), 1 20124 Milano (MI)

Il nostro staff


  • Cesare Gianluca Risoluto
    Affiliato

  • Caterina Mongiardo
    Coordinatrice

  • Davide Felice
    Affiliato
Via Benedetto Marcello (Ang. Via S.Gregorio), 1 20124 Milano (MI)
Zona: Buenos Aires - Porta Venezia
Mostra su mappa
Orari: Lunedì - Venerdì 9.00 - 13.00 / 14.30 - 19.30; Sabato 9.00 - 12.30
Affiliato
Domus 51 Srl
Via Benedetto Marcello (Ang. Via S.Gregorio), 1 20124 Milano (MI)

2026 Tecnocasa Franchising S.p.A. - P. IVA 08365160152 - Via Monte Bianco 60/A 20089 Rozzano (MI). Ogni agenzia ha un proprio titolare ed è autonoma. Privacy policy | Policy utilizzo | Cookie policy